端子手册如图1所示
图1
一. 前期准备
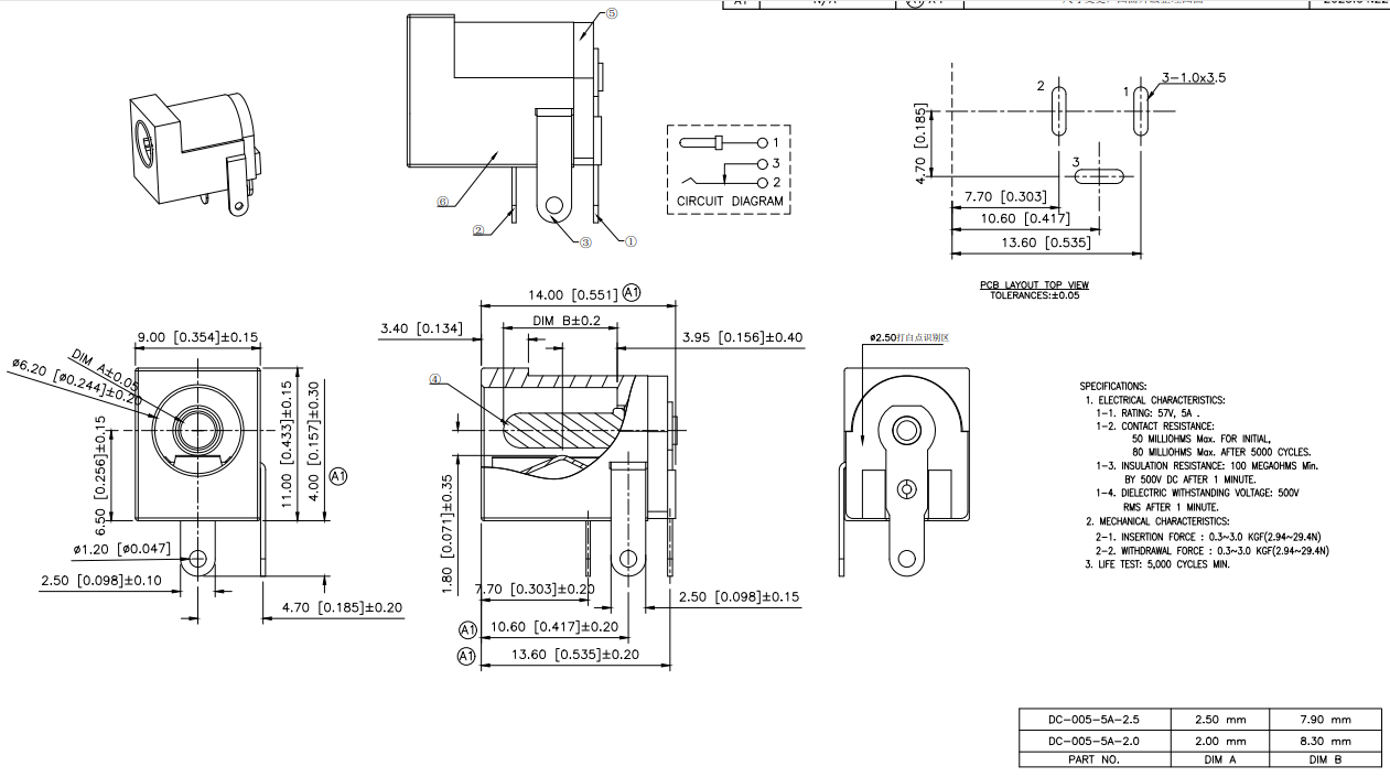
1. 各引脚尺寸,这里DC5521 端子的3个引脚尺寸是一样的,宽2.5±0.1mm*厚度未标
2. 确定通孔尺寸,这里手册直接给出了推荐的通孔尺寸1.0*3.5mm,图中右上角的PCB LAYOUT TOP VIEW(公差±0.05mm),所以就不需要自己计算了;
3. 确定焊盘尺寸,即通孔的BEGAIN LAYER、DEFAULT INTERNAL和END LAYER三个层参数中的Regular Pad尺寸,这里由于引脚间距比较大,焊盘尺寸设置为比通孔尺寸大0.4mm;
4. 确定,Solder Mask(阻焊层)尺寸,Solder Mask(阻焊层)尺寸比焊盘尺寸大0.4mm;
5. 通孔封装的Paster Mask(钢网层)一般不需要设置;
6. 通孔封装的Thermal Relief(热风焊盘)和Anti Pad(反焊盘)一般不设置。
二. 焊盘绘制
1. 打开allegro16.6的Pad Designer程序,新建文件,设置相关参数即可,如图2-3所示

图2

图3
以上仅供参考,主要为本人防遗忘所用,如有不对之处,请评论区批评指正,谢谢!
4727

被折叠的 条评论
为什么被折叠?



