题目描述
为了准备一个独特的颁奖典礼,组织者在会场的一片矩形区域(可看做是平面直角坐标系的第一象限)铺上一些矩形地毯。一共有 nn 张地毯,编号从 11 到 nn。现在将这些地毯按照编号从小到大的顺序平行于坐标轴先后铺设,后铺的地毯覆盖在前面已经铺好的地毯之上。
地毯铺设完成后,组织者想知道覆盖地面某个点的最上面的那张地毯的编号。注意:在矩形地毯边界和四个顶点上的点也算被地毯覆盖。
输入格式
输入共 n + 2n+2 行。
第一行,一个整数 nn,表示总共有 nn 张地毯。
接下来的 nn 行中,第 i+1i+1 行表示编号 ii 的地毯的信息,包含四个整数 a ,b ,g ,ka,b,g,k,每两个整数之间用一个空格隔开,分别表示铺设地毯的左下角的坐标 (a, b)(a,b) 以及地毯在 xx 轴和 yy 轴方向的长度。
第 n + 2n+2 行包含两个整数 x和 y,表示所求的地面的点的坐标 (x, y)。
输出格式
输出共 11 行,一个整数,表示所求的地毯的编号;若此处没有被地毯覆盖则输出 -1。
输入输出样例
输入 #1复制
3
1 0 2 3
0 2 3 3
2 1 3 3
2 2
输出 #1复制
3
输入 #2复制
3
1 0 2 3
0 2 3 3
2 1 3 3
4 5
输出 #2复制
-1
说明/提示
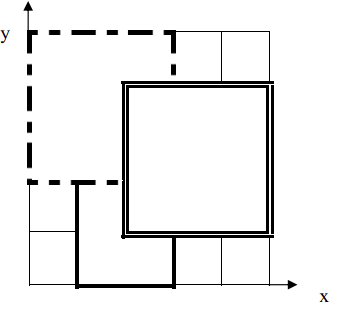
【样例解释 1】
如下图,11 号地毯用实线表示,22 号地毯用虚线表示,33 号用双实线表示,覆盖点 (2,2)(2,2) 的最上面一张地毯是 33 号地毯。

【数据范围】
对于 30%的数据,有 n≤2。
对于 50% 的数据,0≤a,b,g,k≤100。
对于 100% 的数据,有
0≤n≤10^4 0≤a,b,g,k≤105。
首先呢 看到这道题时相信许多人的想法跟我是一样的“这不就是弄个二维的数组,每次铺的时候覆盖下数据不就行了,”确实这个思路的方向确实是没什么问题的,但是我们来看数据的范围,由于地毯的数量最多能多10^4块。
这是这个思路的代码
#include<bits/stdc++.h>
using namespace std;
int w[30], v[30], f[50000];//w数组为重要度,v数组为money,f是用来dp的数组
using namespace std;
int a[10001][10001];
int main()
{
int n;
cin >> n;
for (int i = 1; i <= n; i++)
{
int al, b, x1, x2;
cin >> al >> b >> x1 >> x2;
for (int j = al; j <= al + x1; j++)
{
for (int k = b; k <= b + x2; k++)
{
a[j][k] = i;
}
}
}
int al, b;
cin >> al >> b;
if (a[al][b]) cout << a[al][b] << endl;
else cout << -1 << endl;
return 0;
}
不用问这么做铁定超时。已将尝试过了。
但是细看这道题还是可以化简的我们可以设一个a[10001][5]的数组将a【i】【1】第i张地毯起始点的x轴......a[i][2]:第i张地毯起始点的y轴......a[i][3]:第i张地毯终点的x轴a[i][4]:第i张地毯终点的y。然后呢由于地毯是覆盖的所以只要后面的前面的地毯有重叠就会自动的覆盖掉前面的数据。
这是修改完的代码
#include<bits/stdc++.h>
using namespace std;
int a[10001][5];
int main()
{
int al, b, n;
scanf("%d",&n);
for (int i = 1; i <= n; i++)
{
cin >> a[i][1] >> a[i][2] >> a[i][3] >> a[i][4];
a[i][3] += a[i][1];
a[i][4] += a[i][2];
}
scanf("%d%d",&al,&b);
for (int i = n; i >= 1; i--)
{
if (a[i][1] <= al && a[i][2] <= b && a[i][3] >= al && a[i][4] >= b) { printf("%d\n",i); return 0; }
}
printf("-1\n");
return 0;
}
yjq
博客围绕矩形地毯覆盖问题展开,先描述问题,给出输入输出格式及样例。最初思路用二维数组覆盖数据会超时,后通过设置a[10001][5]数组,利用地毯覆盖特性优化算法,避免超时,给出了两种思路的代码。
8164

被折叠的 条评论
为什么被折叠?



