“外国使馆雷电综合防护系统改造方案(五)
1.4.2
电源线路过压保护:
1
基本要求:
网络机房设备由TN交流配电系统供电时,配电线路必须采用TN—S或TN—C—S系统的接地方式。当机房为TN-C供电时,应将机房配电系统改为TN-C-S,即从机房配电系统的PEN线上另接一根铜导线,作为机房设备的专用N线使用,并将原PEN线与机房接地系统做重复接地。电源PE线的截面积不应小于4mm2。
当配电系统采用总配电与分配电方式供电时,宜优先选择总配电柜与分配电箱安装相应级别SPD。
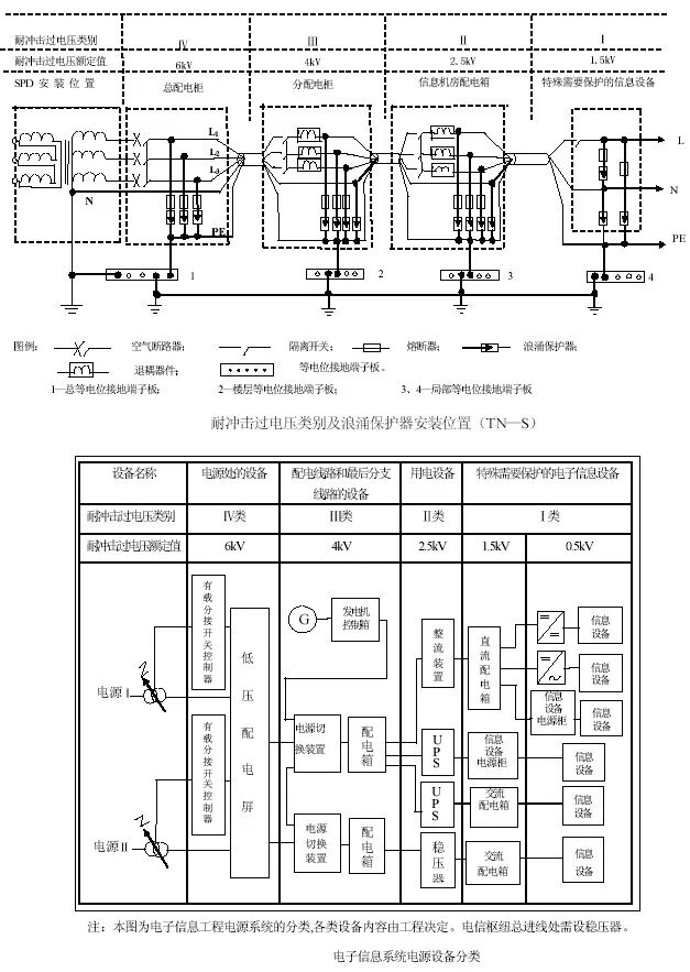
应在总配电柜处安装一级(B级)SPD,并在分配电箱处及设备前端安装两级SPD。其参数的选择宜满足以下要求:总配电柜处SPD的幅值电流Ipeak不宜小于12.5kA(Ⅰ级分类试验、10/350μS波形)或标称放电电流In不小于50kA(Ⅱ级分类试验、8/ 20μS波形),电压保护水平Up不高于2.5kV。机房配电箱处SPD 的In不宜小于20kA,设备前端SPD 的In不宜小于3.5kA。当机房面积较小时宜选择两级复合型SPD。
各级SPD的电压保护水平应与其保护范围内的设备耐冲击绝缘水平匹配。网络设备按GB50057-94(2000)版规定,应属于需要将冲击过电压限制到特定水平以下的I类设备,其耐冲击能力为1.5kV,设备前端SPD 的电压保护水平Up不宜高于1.2kV。
在TN系统中,SPD的最大可持续工作电压应根据学校当地电网电压波动情况合理确定,不应小于系统额定工作电压的1.15倍。
2
电源浪涌保护器安装要求:
SPD连接导线应平直,其长度不宜大于0.5m。当限压型SPD之间的线路长度小于5m时,在两级SPD之间应加装退耦装置。
SPD应有内部脱离保护装置,并宜有劣化显示功能。
并联型电源SPD回路中宜串接保险丝应进行过流保护,保险丝标称电流的量级不宜大于上一级保险丝的 1/1.6 倍(不含变压器的次级)。
当供电为TN系统时,SPD设计安装应采用共模形式。
网络机房设备配电线路浪涌保护器安装位置示意如图

3
电源线路电涌保护产品选择:
电源部分采取三级防护,进行三级电涌过电压是因为能量需要逐级泄放和传输线路会感应LEMP(雷击电磁脉冲辐射),通过多级避雷措施后可将侵入设备的残压限制到一个合理的水平。
◆ 电源第一级防雷保护:安装于总配电。
已经存在,不在考虑。
◆ 电源第二级防雷保护:采用TPS C40 3P+N电源电涌保护器,安装在配楼分配电,共计安装一套。采用TPS C40 1P+N电源电涌保护器,安装在车库配电。共计安装一套。
进一步将通过第一级浪涌保护器的残余浪涌电压限制到2KV以下,对LPZ1 - LPZ 2 实施等电位连接。二级浪涌保护器响应时间应低于25ns,电压保护水平不大于2KV。
设计说明:
根据《建筑物防雷设计规范》第六章:防雷击电磁脉冲;第四节,第6.4.1至6.4.12条LPZ1区对浪涌保护器(SPD)的要求及GB 50054-95《低压配电设计规范》第四章的有关规定,依据雷电分流理论,需使用8/20μs波形,通流容量20KA,能将线路感应雷击过电压限制到2KV以下。对于特殊区域需要做重点防护的配电电源需使用通流容量40KA的浪涌保护器进行加强保护。《建筑物防雷设计规范》第六章对于配电盘、断路器、固定安装的电机等第III类耐冲击过压,其耐压为4KV。对于电梯、机房、空调等属于需要重要保护的区域,浪涌保护器应选择通流容量为40KA。安装于配电箱内。为防止浪涌保护器遭受雷击后损坏后,电源对地短路,需要在浪涌保护器前安装空气开关作为短路保护装置。
按照第二类防雷建筑物雷电防护等级二次雷击参数要求,依据雷电分流理论,可分配到电源线路系统的雷电电流为8/20μs波形75KA,则对于TN系统,每线可分配8/20μs波形雷电流18.75KA,考虑到保护的裕度,作为配电系统电源第二级防雷,需使用8/20μs波形、通流容量40KA每线的电源浪涌保护器将线路感应雷击过电压限制到2000V以下。
选型说明:
依据标准要求配电系统第二级防雷保护设计为:使用8/20μs波形通流容量40KA每线的用TPS C40 系列浪涌保护器,In=20KA(8/20μS),Up≤1.8KV。TPS C40可用于雷击区域的LPZ 1-2区域或更高界面,一般用于建筑物的分配电箱或用于UPS进线端为第二级(C)过压保护器(详细的技术参数见后面的产品介绍)。所有接线用10mm2股铜线连接,地线用16mm2 多股铜线连接。产品具有劣化指示功能或故障遥信功能,模块支持热插拔。
产品主要技术参数(详细的技术参数见后面的产品介绍):产品满足浪涌保护器 (SPD)国家最新标准 GB 18802.1-2002 《低压配电系统的浪涌保护器 (SPD) 第1部份:性能要求和试验方法》,等同IEC 61643《低压配电系统的浪涌保护器(SPD)》标准。产品参数优于标准要求并通过国家权威检测机构检测,符合使用需求。
◆电源第三级防雷精细保护:采用TPS D20 3P+N电源电涌保护器,安装在配楼配电,共计安装一套。
作为设备第三级雷电防护的手段,将残余浪涌电压的值降低到1000伏以内,雷器响应时间应低于25ns,使浪涌的能量不致损坏设备。
设计说明:
根据GB 50057-94(2000版)《建筑物防雷设计规范》第六章:防雷击电磁脉冲;第四节,第6.4.1至6.4.12条LPZ1区对电涌保护器(SPD)的要求及GB 50054-95《低压配电设计规范》第四章:配电线路的保护中有关低压防雷的有关规定;参照JGJ/T 16-92《民用建筑电气设计规范》第13部分:电力设备防雷、第14部分接地及安全以及GBJ 64-83《工业与民用电力装置的过电压保护设计规范》第五章、第六章、第八章部分条文。
选型说明:
依据智能建筑配电线路设计的实际情况,考虑到各种电子机房内设备的重要性,将配电系统第三级防雷保护设计为:使用8/20μs波形、通流容量10KA每线的电源电涌保护器将感应雷击过电压限制到1200V以下。可选用TPS D20限压型电源电源电涌保护器,具有模块化组合功能的电涌保护器件,并能保护安装在它下游的电气装置和设备免遭由于开关动作、静电泄放、感应雷击或直接雷击所产生的浪涌危害,每位最大放电电流可达20KA,可以用于末端设备的第三级保护。分别并接在电源分配电屏电源输入端的相线及零线与地线之间,电涌保护器前端串接小型断路器。(详细的技术参数见后面的产品介绍)。
产品主要技术参数(详细的技术参数见后面的产品介绍):产品满足浪涌保护器 (SPD)国家最新标准 GB 18802.1-2002 《低压配电系统的浪涌保护器 (SPD) 第1部份:性能要求和试验方法》,等同IEC 61643《低压配电系统的浪涌保护器(SPD)》标准。产品参数优于标准要求并通过国家权威检测机构检测,符合使用需求。
◆电源第三级防雷保护:采用TPS D10 JF7电源电涌保护器,安装于办公室重要设备前端。共计安装15只
作为最终保护设备的手段,将残余浪涌电压的值降低到1000伏以内,雷器响应时间应低于25ns,使浪涌的能量不致损坏设备。
设计说明:
根据IEC 61312-3雷电电磁脉冲的防护 第三部分:浪涌保护器的要求,在LPZ2区内,浪涌保护器可将浪涌电压限制到一千多伏,浪涌保护器通流容量为(8/20μs):≥3.5KA。从智能建筑中所使用设备的实际情况,考虑到服务器等高价位设备的重要性,将配电系统末级防雷保护设计为:使用8/20μs波形、通流容量3.5KA的插座型电源浪涌保护器将感应雷击过电压限制到1000V以下。
选型说明:
本方案采用机架式TPS D10 JF插座式电涌保护转换器,In=3.5KA(8/20μS),Up≤1.0KV。TPS D10系列电涌保护转换器,专为精细保护单相交流供电的敏感设备而设计的,可作为设备端末级(III或IV)电涌保护装置,使设备免遭由雷击或电子干扰产生的瞬态过电压的损害。本系列产品配有多路输出插孔,可同时保护数路电源,并通过内置热耦合元件监控其保护效能;超宽间距的万用插孔,适合多国插头标准;全面的监控警示功能,实时反映转换器的工作状态(详细的技术参数见后面的产品介绍)。
产品主要技术参数(详细的技术参数见后面的产品介绍):产品满足浪涌保护器 (SPD)国家最新标准 GB 18802.1-2002 《低压配电系统的浪涌保护器 (SPD) 第1部份:性能要求和试验方法》,等同IEC 61643《低压配电系统的浪涌保护器(SPD)》标准。产品参数优于标准要求并通过国家权威检测机构检测,符合使用需求。

1564

被折叠的 条评论
为什么被折叠?



