本文为CAD芯智库整理,未经允许请勿复制、转载!
原文转自:www.xwzsoft.com/h-nd-612.html
【中望3D2026工程图新升级】系列前两篇已经分享了:
① 中望3D2026实现了与中望CAD对同一图纸的关联和同步更新;
② 工程视图的剖视图/旋转视图优化。
今天最后一篇是分享工程图的智能化出图。针对工程图出图场景,中望3D 2026优化了自动标注和自动出图命令的效率,从而更轻松地应对复杂的设计项目,适用更多的应用场景,包括:
1. 自动标注效率全方位提升。
增加了多种类型对象的自动标注功能,提高了规则零件一次性标好的成功率。
2. 自动出图成套配置更智能。
可以建立各类产品的出图设置,快速批量重复出图,减少不必要的重复设置,显著加快出图速度。

30秒速懂中望3D是什么?
国产自主研发三维CAD/CAE/CAM全流程工业软件,企业三维CAD国产化替代方案,支持Wins+Linux双系统。高效兼容Creo/Proe、NX/UG、Solidworks、Caita等国外3D软件。拥有曲面造型、实体建模、模具设计、装配钣金、工程图、仿真(流体/结构/电磁)、2-5轴加工模块。
快速指引
→ 中望3D企业版低成本选型:www.xwzsoft.com/zw3d.html
→ 中望3D 2026企业版优惠、试用支持:400·806·2030

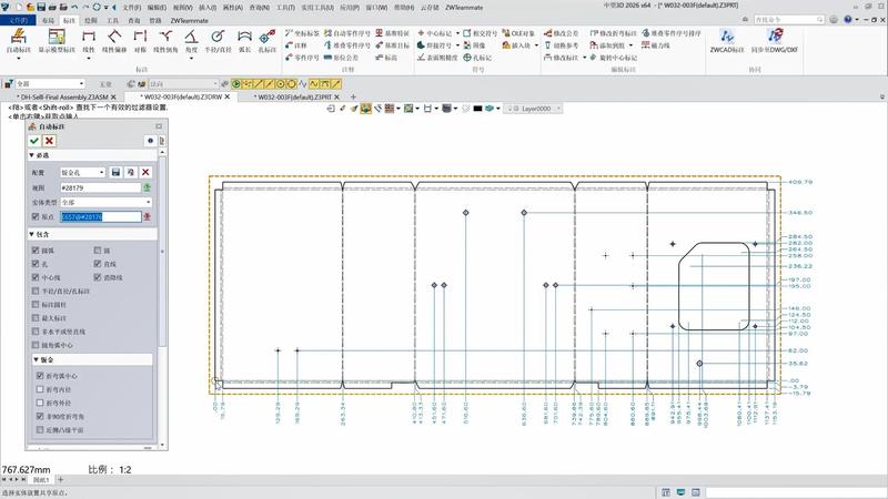
一、自动标注效率全方位提升
以对注塑机模型的钣金零件为例,中望3D2026工程图中可以设置多种类型对象的自动标注。常规标注对象如中心线、隐藏线。对于钣金对象,如折弯内径折弯角度等注释支持保存配置。


常规的产品零件结构都有一定的复杂度,需要多个不同的工艺尺寸,在不同方位进行多处标注,才能完整表达工艺要求,但过去需要工程师手动逐一标注,操作繁琐耗时长。
中望3D2026基于行业客户的反馈,增加对多种类型对象的自动标注,尤其对于钣金等规则,零件一次标好。

二、自动出图成套配置化更智能
对于设计规模大且复杂的产品,高效的自动出图能缩短项目周期,为客户提供更流畅的出图体验。中望3D2026重新调整自动出图模块,支撑出图设置的成套配置化,方便重复使用。

不同类型的零件有各自特定视图标注和表格要求,自动出图需要为此建立成套设置,结合更新的自动标注,一次完成出图的视图自动放置和标注的操作,减少手动干预,提高出图效率。



我们也为您解答:
中望3D企业版选型技巧 | 400·806·2030 | xwzsoft.com
1. 中望3D 2026是否能实现与中望CAD二维图纸关联出图?
2. 中望3D 2026 能否带参编辑Proe/Creo、UG/NX、Solidworks、Caita图纸模型?

被折叠的 条评论
为什么被折叠?



