
CHR2295-99F
CHR2295-99F 拥有无与伦比的宽带性能,无论射频信号如何变化,它都能轻松应对,将其转化为稳定的中频信号。它的高转换增益,如同武林高手的内力,将微弱的射频信号放大数倍,使其变得强大而有力。
宽带性能:工作频率范围为 24-30GHz。
高转换增益:典型值为 11dB。
低噪声系数:典型值为 3.5dB (IF > 0.1GHz)。
低功耗:在 3.5V 电压下,典型功耗为 120mA。
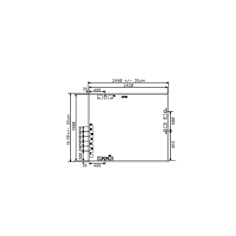
芯片尺寸小:2.49mm x 1.97mm x 0.10mm。
CHR2296-99F
CHR3894-QEG
CHR3894-98F
CHR3394-QEG
CHR1080a98F
CHKA011aSXA
CHK8013-99F
CHK9014-99F
CHK8015-99F
CHK8201-SYA
CHKA012a99F
CHK015AaQIA
CHKA012bSYA
CHK8101-SYC
CHK8101a99F
CHK9013-99F
CHZ180AaSEB
193

被折叠的 条评论
为什么被折叠?



