作为嵌入式入门新手,近期完成了 STM8S103F3 最小系统板的完整设计流程,涵盖项目搭建、原理图绘制、PCBLayout、规则检查及文件输出等关键环节。过程中踩过不少坑,也积累了实用技巧,现结合实操细节分享心得,希望能为同类学习者提供参考。
一、项目搭建与库文件准备:基础打牢是关键
设计之初,我选择 STM32CubeIDE 作为开发环境(兼容 STM8 系列),新建项目时需注意器件型号精准匹配——STM8S103F3 是 8 位 MCU,需在器件选择界面筛选 “STM8S103F3P6”,避免因型号选错导致后续编译报错。库文件方面,STM8 标准库需从 ST 官网下载对应版本,导入时要在项目属性中配置 “Include Path”,将库的头文件路径添加进去,同时勾选 “Use STM8 Standard Peripheral Library”,确保函数调用正常。
这里踩过一个坑:初期直接复制库文件到项目文件夹,未配置路径,导致编译时出现 “头文件未找到” 错误。后来发现,需通过 IDE 的 “Project -> Properties -> C/C++ General -> Paths and Symbols” 手动添加路径,且路径需选择 “Workspace Relative Path”,提高项目移植性。此外,我还自定义了常用器件库(如 0805 电阻、LED、排针等),在 Altium Designer 中绘制封装时,严格参考数据手册的引脚间距和封装尺寸,避免后续焊接问题。
二、原理图与 PCB 设计:细节决定成败
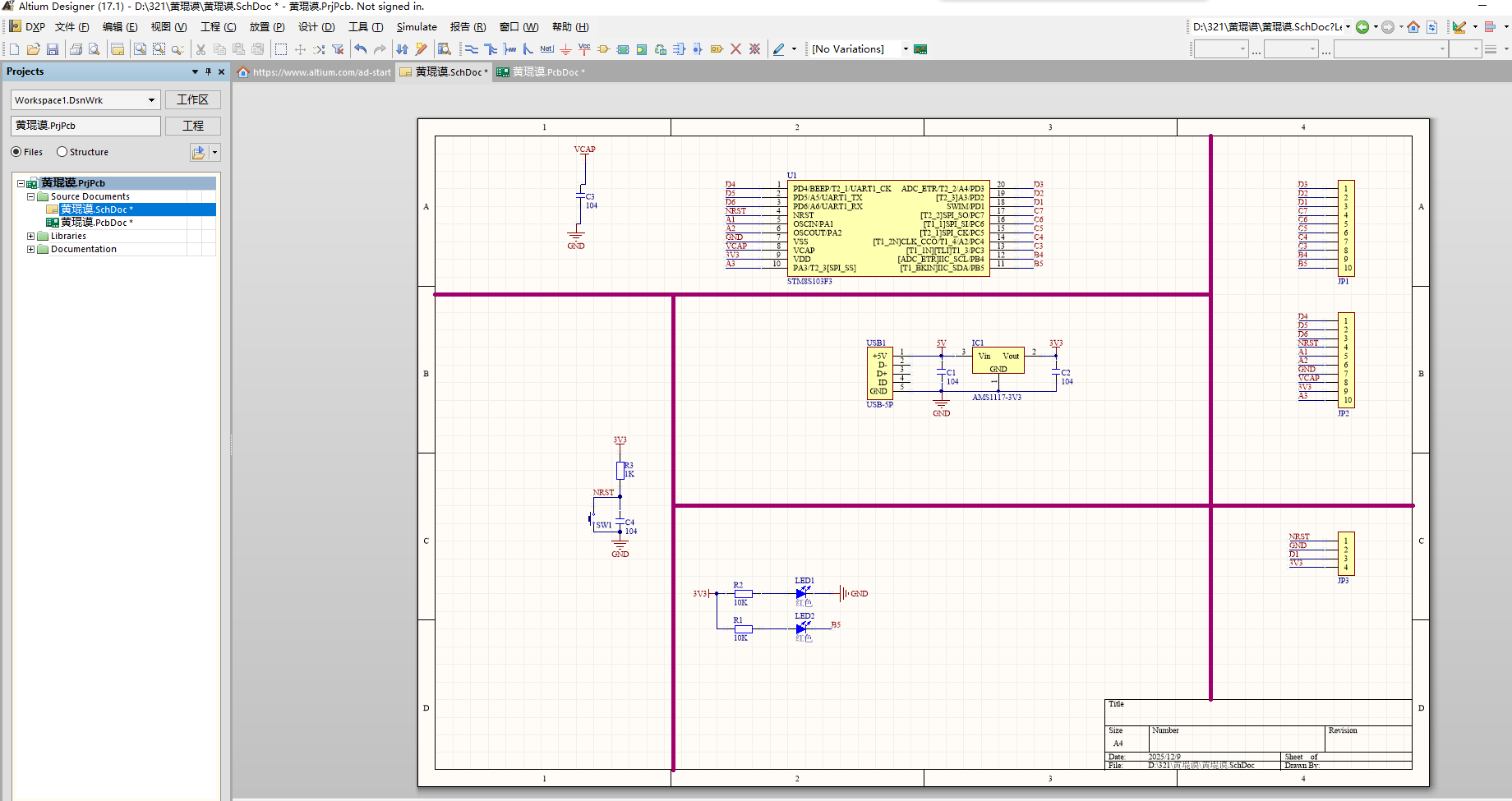
原理图绘制阶段,核心是逻辑清晰、标注规范。STM8S103F3 最小系统需包含电源电路、复位电路、晶振电路和下载接口。电源部分采用 AMS1117-3.3V 稳压芯片,输入 5V 电压,输出 3.3V 给 MCU 供电,同时在芯片输入端和输出端并联 100nF 陶瓷电容和 10μF 电解电容,用于滤波降噪;复位电路选用简单的 RC 复位,电阻 10kΩ、电容 10μF,确保上电复位稳定;晶振电路采用 8MHz 外部晶振,搭配两个 22pF 负载电容,连接到 MCU 的 OSCIN 和 OSCOUT 引脚。
绘制完成后,务必进行原理图编译(Tools -> Electrical Rules Check),重点检查 “未连接的引脚”“短路错误”“器件型号错误”。我曾因晶振电路的负载电容未连接到地,编译时提示 “Net GND has no driving source”,修正后才通过检查。
PCB 设计是整个流程的重点,需分步骤推进:
- 规则设置:优先配置核心规则,线宽设置为电源轨 1mm、信号线 0.3mm(满足电流需求和制造工艺),过孔直径 0.8mm、孔径 0.4mm,焊盘间距≥0.2mm,禁止布线区(Keep-Out Layer)比板边大 0.3mm,避免板边露铜。
- 交互式布局:遵循 “核心器件居中、信号路径最短” 原则,将 STM8S103F3 芯片放在 PCB 中心,稳压芯片靠近电源接口,晶振靠近 MCU 的晶振引脚,减少信号干扰。布局时还需预留焊接空间,排针、LED 等插件器件的间距≥2mm,方便后续手工焊接。
- 布线技巧:电源线和晶振线尽量短而粗,避免走直角(采用 45° 角或圆弧布线),减少信号反射;信号线避免交叉,若必须交叉可通过过孔换层;下载接口(SWIM 和 NRST 引脚)的布线远离电源轨,防止干扰下载信号。
- 铺铜与过孔缝合:采用 “局部铺铜” 方式,在顶层和底层铺 GND 铜皮,铺铜时勾选 “Remove Dead Copper”(移除死铜),并通过过孔缝合(每 200mil 一个过孔)将顶层和底层铜皮连接,增强接地性能和散热效果。注意铺铜需远离焊盘和器件引脚,间距≥0.3mm,避免短路。
三、规则检查与文件输出:收尾工作不马虎
PCB 设计完成后,进行设计规则检查(DRC),重点检查线宽、间距、过孔、铺铜等是否符合规则,确保无制造错误。若提示 “Clearance violation”(间距违规),可微调器件位置或加宽布线间距;若提示 “Unconnected net”(未连接网络),需返回原理图检查连线。
最终输出文件包括:Gerber 文件(用于 PCB 打样,需包含顶层、底层、丝印层、阻焊层、钻孔文件)、BOM 表(物料清单,标注器件型号、封装、数量)、PCB 源文件。输出 Gerber 文件时,需选择 “RS-274X” 格式,确保打样厂家能正常识别。
四、学习总结与感悟
此次 STM8S103F3 最小系统板设计,让我深刻体会到 “理论结合实践” 的重要性。从库文件制作到 PCB 打样,每一个环节都需严谨细致,一个微小的错误(如封装尺寸偏差、布线短路)都可能导致整个项目失败。此外,学会利用工具解决问题也很关键,比如 Altium Designer 的 “Interactive Routing” 功能可自动规避障碍物,“PCB Filter” 能快速筛选特定器件或网络,提高设计效率。
后续我计划在此基础上增加外设模块(如 LED 流水灯、按键输入),进一步优化 PCB 布局和布线,同时学习 EMC 设计知识,减少电路干扰。嵌入式设计之路没有捷径,唯有多练、多踩坑、多总结,才能不断提升设计能力。
464

被折叠的 条评论
为什么被折叠?



