
智能化总体设计

综合布线系统
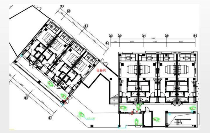
1号楼大厅布线点位设计:
前台:数据语音点
办公室:数据语音点
电梯厅:电视点位
大厅:无线AP点位

4号楼办公室布线点位设计:

标准层客房、公共区域布线点位设计:

监控子系统
本次设计摄像机共计198个,主要在主次出入口、 地面主要道路、客房通道、楼栋出入口、楼梯口、 连廊通道、下客区、电梯轿厢、厨房等区域设置点位。楼栋出入口摄像机采用人脸抓拍功能、主次出入口采用车牌抓拍摄像机,下客区采用人脸抓拍、全景摄像机。
门禁子系统
本次设计门禁25个,主要覆盖在楼栋出入口、重要机房。

安防系统
室外安防点位设计

室外安防点位设计:

1号楼安防点位设计

标准一层安防点位设计:


标准二层安防点位设计:

标准客房点位设计

智能灯光系统
实现照明控制智能化
美化服务环境吸引宾客光临
提高管理水平,减少维护费用
可观的节能效果
延长灯具寿命

在酒店大堂前台及餐厅收银处配置智能5.7寸彩色触摸屏,使大堂的灯光得到智能化的管理,可以恰到好处的将自然光与室内照明得到完美的结合。所有的场景模式都是通过调节一组回路的亮暗,使其搭配成多种不同的灯光效果。将上述的这些场景分别存储在智能控制面板的各个按键中,当有需要时可方便地通过按动其中一个按钮调用所需的场景状态。
宴会厅系统组成

LED大屏、扩声
户内全彩P2.5LED屏: 显示屏净尺寸:4.8m*2.72m=13.056m² ,屏体分辨率:2304*1280
2只线性主扩声音柱,壁装在舞台两侧,4只辅助音柱采用壁装方式,舞台左右两侧超低频音箱
配置4只无线手持话筒满足主持人发言和流动发言使用,无线话筒天线全部外引到舞台,保证信号接收的可靠性。
舞台前方配置5台影视灯,300W 可调色温LED平板柔光灯,0.8米-1.2米布置一个,自舞台中间顶部正面向舞台投射光,作为表演区正面主光,主要用于照亮舞台前部表演区,对舞台上的表演者起到正面照明的作用,供人物造型用或使舞台上的物体呈现立体效果。效果灯在舞台上空每隔1.2M-2.0M左右设置效果灯,灯具吊挂在灯吊杆下边,可随机频闪,脉冲频闪,同步异步频闪,单色、混色温频闪。RGBW(红绿蓝白)线性混色,1670万种颜色(0-100%饱和度可调)。其作用是满足宴会厅日常活动场景的需求。
项目实际实施
1、安防核心交换机选择
2、楼层设备间
3、建筑无法满足安装要求
4、系统对接
5、各点位定位
本文详细描述了酒店的智能化总体设计,包括综合布线点位、监控与门禁系统、安防布局、智能灯光控制以及宴会厅的LED屏幕、扩声设备和系统实施要点,旨在提升酒店管理效率和服务质量。
921

被折叠的 条评论
为什么被折叠?



