人脸识别二维码扫码IC卡刷卡智能电梯管理系统方案(可视对讲联动型)

对于业主:可以在电梯内刷卡扫二维码人脸自动识别乘梯上楼,并且卡内楼层权限可以在管理中心设定,无权限的楼层按钮则不能点亮。刷单层卡(卡内只有一个楼层权限)可以自动点亮楼层按钮,用户无须手按。
业主下楼时,通过上下行按钮召唤电梯,进入电梯后可不需刷卡,可直接按亮“一层或地下层”的楼层按钮。
对于来访客人:则由业主在家里使用可视对讲分机来授权该访客乘梯上楼,并且访客进入电梯后只能点亮该业主的楼层,其它没有权限的楼层则不能点亮。
对于忘记带卡的业主(没有选配二维码或人脸识别):可以通过可视对讲与管理中心联系,由管理人员利用系统软件的远程控制功能来开放业主的楼层,让业主临时乘梯上楼。
对于内部物管人员:则可以发行通卡(一张卡内拥有全部电梯所有楼层的权限),刷卡后在设定时间范围内可以任意选择要去的楼层,
对于电梯检修维护:只需通过轿箱内(司机开关盒内)的“脱离开关”就可以将电梯管理系统与电梯分离,电梯恢复原有状态,以便于电梯检修。
对于消防状态或系统故障时:IC卡梯控系统可以自动退出电梯楼层管制,恢复操纵箱操作。
对于防复制卡:可选用CPU卡或国密卡,完全杜绝复制卡/破解卡的问题。
对于贯通门电梯, 当电梯为前后贯通门,并且轿箱内配有两套操纵盘(各控制一侧梯门)的时候,本系统可以识别业主卡的房号,控制电梯到达楼层后只打开该业主一侧的电梯门,另一侧梯门不能打开(包括手按另一侧开门按钮),实现真正的刷卡到户,当两侧业主同时刷卡上楼的话,当电梯到达后则两侧都可开门。系统在任何时候,保证至少有一侧开门按钮可以正常使用并且自带多种传感器,当电梯失速下坠时,多奥梯控系统可自动恢复电梯两侧开门。

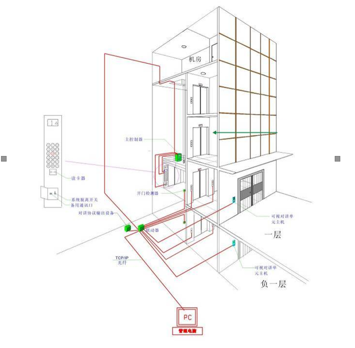
二维码刷卡人脸识别电梯门禁且与可视对讲联动电梯梯控系统详细配置清单
智能电梯控制器主板 即梯控控制器带网口,电梯门禁主板带韦根输入,逻辑关系处理
多奥 DAIC-DT-MB
输入电压: 12V直流
工作电流:150mA
工作温度:-20~70℃
工作湿度: 15~95%
通信接口:1个RS485 1个TCP
存储:10000个卡片 10000条记录(智能脱机模式卡片无限制)
电梯楼层扩展板 梯控触点扩展板可以控制16个楼层 多奥 DAIC-DT-16K
输入电压: 12V直流
控制楼层:16层
工作电流:200mA
工作温度:-20~70℃
工作湿度: 15~95%
控制楼层: 16
电梯门禁层控电源 对讲联动梯控专用 多奥 DAIC-DT-12V/5A
AC输入: 110V~240V
DC输出: 12V/5A
综合噪声: 240MV
功率: 40W

层控机箱 梯控专用 多奥 DAIC-DT-JX 尺寸:390*300*110MM或350*350*110
按键控制线 COP按键线 多奥 RVV24*0.2 6米 定制
人脸识别电梯门禁读头终端 人脸识别+IC卡 多奥 DAIC-DT-FACE
识别距离:0.3~1.5米
人脸角度:左右30度,上下30度
识别时间:小于0.3秒
人脸容量:20000张
屏幕尺寸:8寸
双目摄像头,多奥定制镜头,可见光和近红外,支持活体检测
对讲联动控制器 对讲和梯控协议对接(也可做机器人、AGV、AMR机器人乘梯信号联动) 多奥 DAIC-DT-LYCJ
输入电压 5V直流
工作温度-20~70℃
工作湿度 15~95%
通讯接口 485,TCP
发卡器 USB接口 多奥 DAIC-YKT-FKQ 通讯接口 USB,无需驱动,直插即用
读卡类型 M1或CPU卡

被折叠的 条评论
为什么被折叠?



