1.某工程有A、B、C三个设计方案,有关专家决定从四个功能(分别以F1、F2、F3、F4表示)对不同方案进行评价,并得到以下结论:A、B、C三个方案中,F1的优劣顺序依次为B、A、C,F2的优劣顺序依次为A、C、B,F3的优劣顺序依次为C、B、A,F4的优劣顺序依次为A、B、C。经进一步研究,专家确定三个方案各功能的评价计分标准均为:最优者得3分,居中者得2分,最差者得1分。
据造价工程师估算,A、B、C三个方案的造价分别为8500万元、7600万元、6900万元。
问题:
(1)计算A、B、C三个方案各功能的得分。
(2)若四个功能之间的重要性关系排序为F2>F1>F4>F3,采用0—1评分法确定各功能的权重。
(3)已知A、B两方案的价值指数分别为1.127、0.961,在0—1评分法的基础上计算C方案的价值指数,并根据价值指数的大小选择最佳设计方案。
(4)若四个功能之间的重要性关系为:F1与F2同等重要,F1相对F4较重要,F2相对F3很重要。采用0—4评分法确定各功能的权重。(计算结果保留三位小数)
试题解析正确答案
试题难度
一般
参考解析
【解题思路】
(1)按照0—1评分法的打分原则正确计算各指标的权重。
(2)算出各方案的功能指数和成本指数后,计算各方案的价值指数,比较大小选出最佳方案。
(3)按照0—4评分法的打分原则正确计算各指标的权重,这里应注意对各评价指标间相对重要程度关系的理解。
【答案】
问题(1):
问题(2):
问题(3):
A的功能权重得分=2×0.3+3×0.4+1×0.1+3×0.2=2.5
B的功能权重得分=3×0.3+1×0.4+2×0.1+2×0.2=1.9
C的功能权重得分=1×0.3+2×0.4+3×0.1+1×0.2=1.6
C的功能指数=1.6/(2.5+1.9+1.6)=0.267
C的成本指数=6900/(8500+7600+6900)=0.3
C的价值指数=0.267/0.3=0.89
通过比较,A方案的价值指数最大,所以A方案为最优方案。
问题(4):
考前内部押题锁分,去做题>>
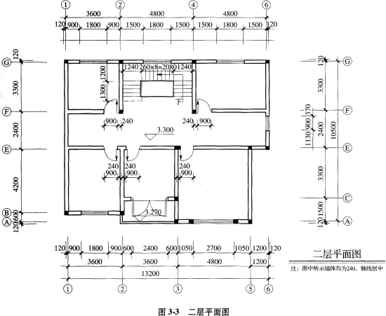
2.某拟建工程为二层砖混结构,一砖外墙,层高3.3m,平面图见图3-2、图3-3。
问题:求该工程建筑面积。

试题解析正确答案
试题难度
一般
参考解析
【解题思路】
计算建筑面积时,注意到首层与二层外墙外围的差别仅在入口处;又根据建筑面积计算规则,首层门外台阶不计建筑面积,因此二层建筑面积只需用一层建筑面积加上二层多出的阳台建筑面积即可。
【答案】
建筑面积:按图纸从左至右计算
一层:10.14×3.84+9.24×3.36+10.74 × 5.04+5.94×1.2=131.24(m2)
二层:131.24(m2)(除阳台外)
阳台:(3.36×1.5+0.6×0.24)× 1/2=2.59(m2)
S=131.24+131.24+2.59=265.07(m2)
考前内部押题锁分,去做题>>
本文通过对A、B、C三个设计方案的功能评价及造价分析,采用0-1评分法和0-4评分法确定各功能权重,并计算各方案的价值指数来选定最佳方案。同时,根据给定的建筑平面图计算了拟建工程的总建筑面积。
1140

被折叠的 条评论
为什么被折叠?



