原计划在下周一把这个文章分享给大家,不过好东西迫不及待想跟大家分享,就提前发这篇文章了!!
在完成上一次4.0.105.0的版本更新后我已经觉得Teams Rooms变得非常好用了,效果也非常棒,先来看下我们当前成都体验中心的Demo,开会体验棒棒哒

不过微软突然在2019年8月中旬对Microsoft Teams Rooms进行了革命性更新!版本号为4.1.22.0,看下微软是怎么描述这次更新内容的:
此次更新介绍:
l 一种新的内容摄像头功能,使用户能够智能地将传统白板包含在他们的团队会议中
l 对控制台UI进行了其他改进,以减少混乱,并将“设置”移动到通过控制台上的“更多”访问的新侧栏
l 如果未连接本地内容电缆或未连接内容摄像头,则禁用共享托盘按钮
l 修复了仅在MTR系统重启后第一次出现故障的触摸键盘问题
l 质量和可靠性修复
无疑第一个功能是这次更新的重点内容,也是一个革命性的功能,微软称之为Content Camera,至于这是一个什么东西,我想用虚拟现实白板来描述最为恰当!虽然在Teams PC Client中有共享电子白板功能,如果没有可触控电脑加手写笔的加持单靠鼠标去书写就感觉非常鸡肋,体验太差了。那么有没有可能在普通的白板或者白纸上用笔书写然后让所有人都能看到呢?是的,他来了,他真的来了!Content Camera就是实现这个功能的,具体效果可以先观此视频,个人认为甚至引入了一部分Office Lens的功能(即时白板斜着放会议中自动校正虚拟现实白板图像为长方形或正方形)看完后一定会颠覆你对视频会议的认识!
要想实现此功能,必须要借助MTR(Microsoft Teams Rooms)来实现,至于怎么去构建MTR,之前的文章也有详细去跟大家分享,如有需要再次了解的同学可以点我跳转
那么什么是Content Camera呢?一开始Google和Bing都没有搜出来,这个玩意儿确是太新了。我尝试用微软认证的Logitech Rally(CC5000e)去作为Content Camera,但是直接报了下面的错:
提示:所选内容相机未经认证(无法点击保存)。虽然Rally通过了Teams的认证但是还未通过Content Camera认证。
回过头来查询了下目前已经通过Content Camera认证的摄像头,只有3款,如下:
分别是:快思聪的Huddly IQ和罗技的BRIO 4K摄像头以及罗技C930e HD摄像头。其中C930e最便宜,BRIO 4K的效果最棒,快思聪的我还没用过不做评价。。。
随后我也是在京东上购买了C930e摄像头以及带三脚架的可书写白板(特别注意:当前MTR中的虚拟现实白板只支持白色的白板,后面测试甚至白墙上都OK,目前不支持其他背景颜色的白板)来做测试。
对于摄像头固件版本一定要按照上表的要求去满足,如不知道当前摄像头固件版本的可以使用Logitech Camera setting工具来查看,下载链接如下:
https://download01.logi.com/web/ftp/pub/techsupport/cameras/Webcams/LogiCameraSettings_2.10.4.exe
下载好之后安装好,将C930e通过USB线连接到电脑检查其固件版本
检查出来的版本是8.0.896,所以还得更新固件版本,Logitech C930e固件8.0.914版本下载链接如下:
https://download01.logi.com/web/ftp/pub/techsupport/cameras/Webcams/C930eFWUpdate_8.0.914.exe
下载好固件后双击安装
选择Update Device以更新到8.0.914版本,如下图
更新过程中给Logitech点赞,检测到我没有接通电源,担心更新过程中没电意外关机导致更新失败,友情提示我要接入电源
接入电源后继续更新,最终更新成功
然后再继续检测版本
最后选择宽荧屏模式,扩展为广角摄像头
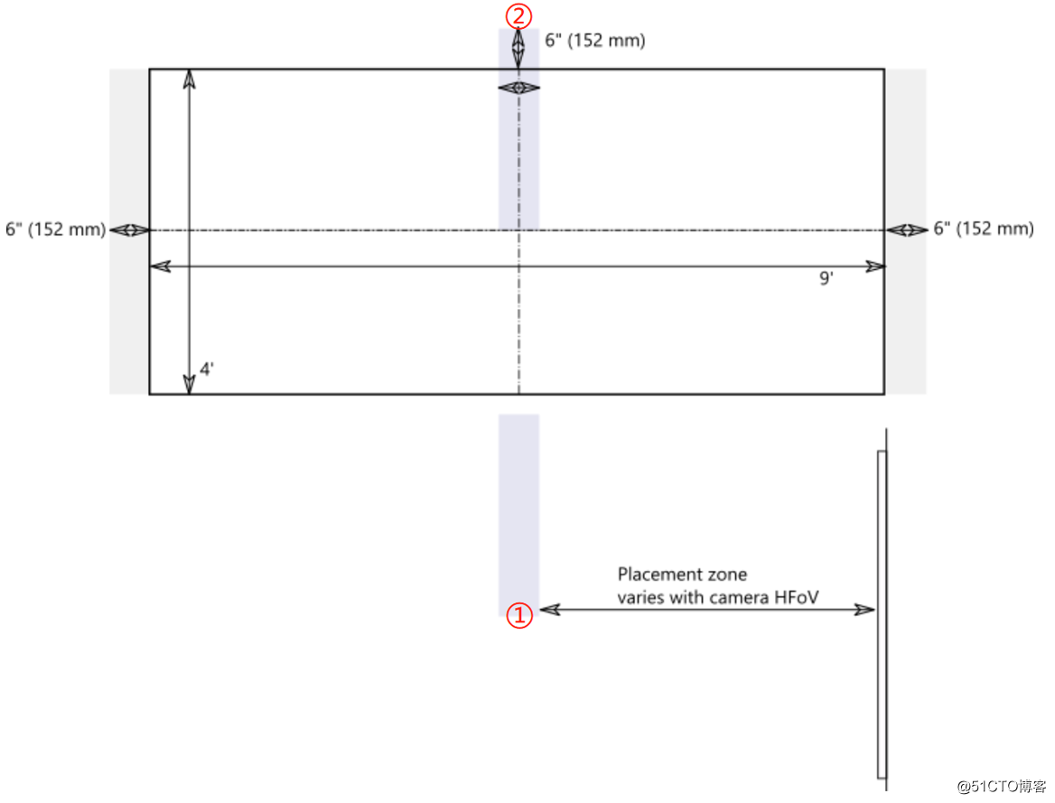
相机位置:
① 最佳位置是在白板的水平和垂直的中心点上,然后基于摄像头的HFOV值来调整离白板的距离
② 如果要将摄像头放在白板顶部,至少要高出白板顶部152mm
摄像头离白板的距离微软给出了建议值,如下表:
如果觉得麻烦,可以把摄像头选中之后,进行预览图像,手动调整到你觉得合适的位置也是OK的,如果摄像头是倒置安装在天花板上的,需要勾选倒转内容摄像头180°如下图:
预览实时调整白板到摄像头距离(前两个月在家里给我的ThinkpadX240装上了MTR,迫不及待的想测试虚拟现实白板,请忽略我家里环境~~)如下图
所以在家里简单搭了个demo环境可以参考下(请再次忽略我家里这么乱糟糟的,有小孩)
一切搞定之后来开一场Teams会议吧
点击加入后,选择共享按钮
选择内容照相机,由于Thinkpad不是真正意义上的MTR控制器,所以没有HDMI IN的功能,如果在办公室里面使用会议控制器如罗技TP100,HP G2,亿联MVC500/800则这里共享还可以选择HDMI外接的其他PC桌面(在文章开头第二张图就是HDMI IN接到其他PC上,PC的桌面实时显示在显示器上)
成功加入会议后远程参会者就能看到共享的虚拟现实白板,此时我使用Teams PC Client客户端加入该会议就能看到这个白板
然后有请我的模特儿在白板上写了点东西我在PC Client上几乎是实时显示白板上手写的内容,如下图
不过测试过程中还是有些小问题,比如用白板擦把写过的内容擦掉后最长等待了20秒以上我这边客户端的共享才会消失,我暂时把这个理解为网络不稳定吧(虽然我家是电信200MB光纤)。。。
最最最重要的是:怎么更新到这个版本?
微软的建议是MTR主机一直连接到Internet,会通过Windows Update来更新版本,或者通过WSUS或者SCCM来更新。如果不能连接到Internet就自求多福了,我测试了两天离线更新(从4.0.85.0直接更新到4.1.22.0,跳过当中的4.0.105.0版本),最终都失败了!报错如下(我以及尝试多种办法,包括直接运行appx文件都最终失败):
如果有高人能解决这个问题,请分享下吧。
这篇文章我感觉给Logitech打了好大一个Guang告。。。不过Logitech的C930e USB线只有1.82M长,所以在做会议室规划的时候要注意会议室主机位置和白板的摆放。
最后,如需实际体验可到我司北京、上海、广州、深圳、成都办公室进行实际体验。
微软近期推出的Teams Rooms 4.1.22.0版本更新,引入了Content Camera功能,实现了智能捕捉传统白板内容并融入会议,提升了用户体验。同时,对控制台UI进行了优化,修复了多项问题,增强了会议质量。

被折叠的 条评论
为什么被折叠?



